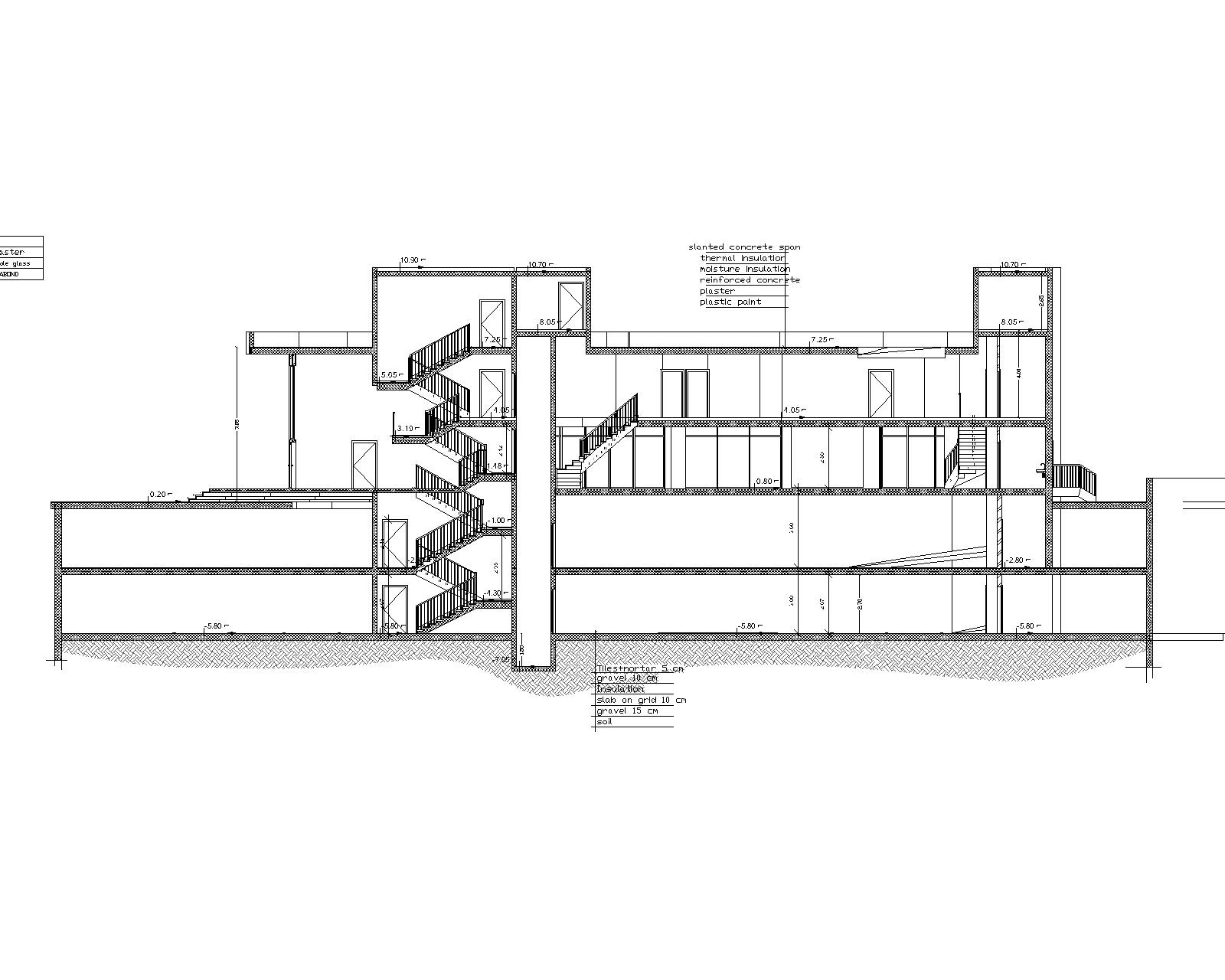
The project is a two-story car showroom designed for Changan, a leading Chinese
automotive brand. The ground floor functions as the main exhibition space displaying the latest car models, while the upper floor accommodates administrative offices and meeting areas overlooking the showroom.
A large ramp connects the ground level to the roof, allowing vehicles to be displayed and parked on the upper deck. The design emphasizes functionality, circulation efficiency, and a modern architectural language that reflects the brand’s innovative identity.
automotive brand. The ground floor functions as the main exhibition space displaying the latest car models, while the upper floor accommodates administrative offices and meeting areas overlooking the showroom.
A large ramp connects the ground level to the roof, allowing vehicles to be displayed and parked on the upper deck. The design emphasizes functionality, circulation efficiency, and a modern architectural language that reflects the brand’s innovative identity.