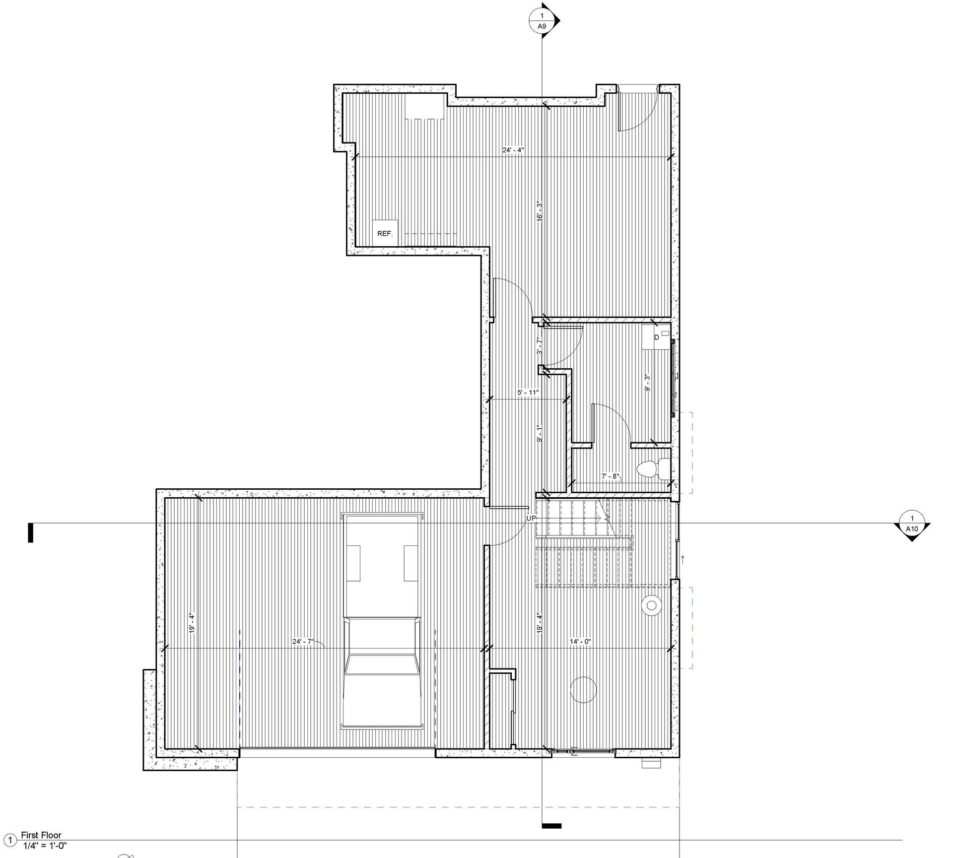
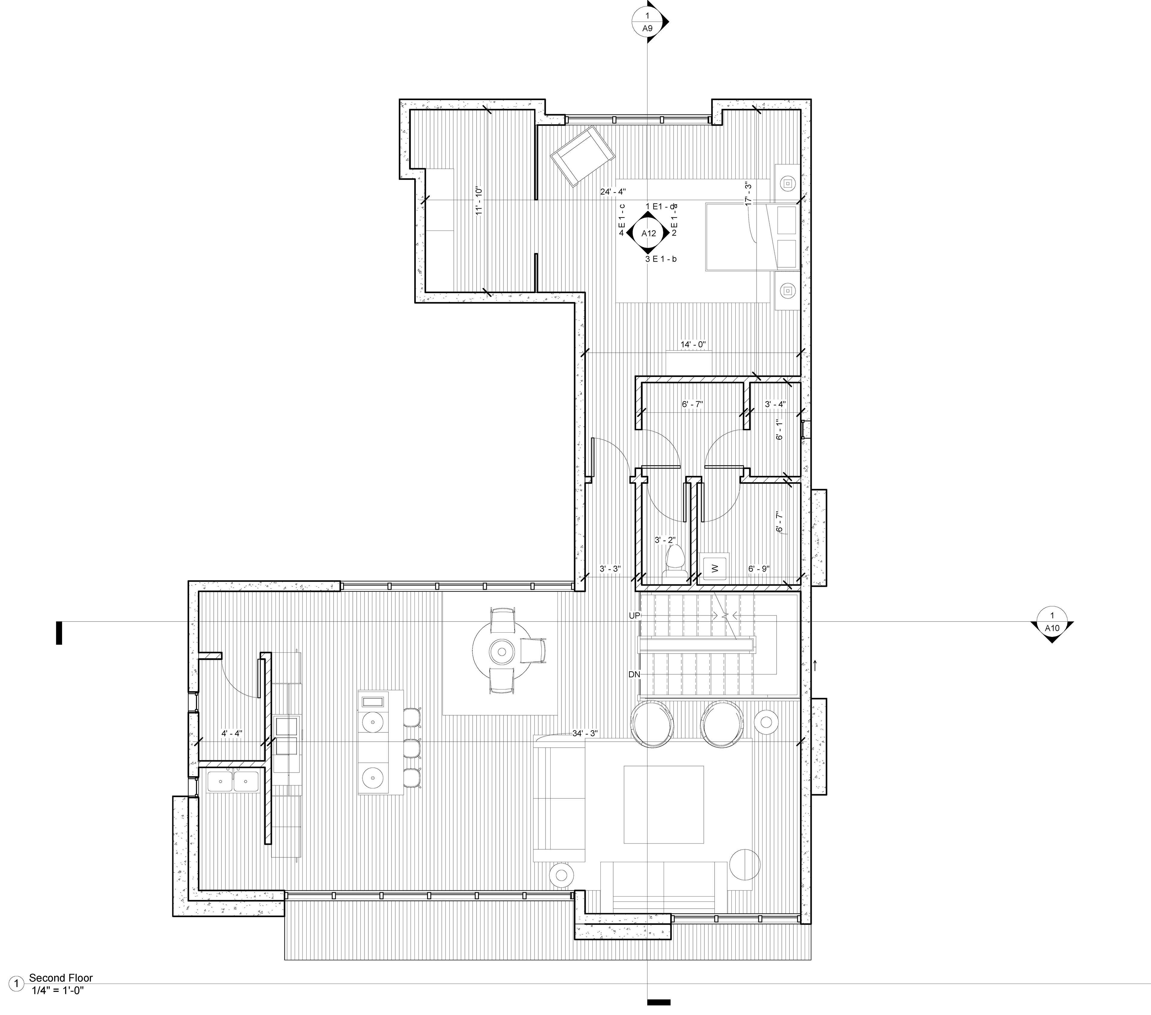
This villa project was fully developed using Autodesk Revit, where all construction drawings, including plans, sections, elevations, and details, were created directly within the software. Through this process, I gained comprehensive proficiency in Revit’s tools and commands, learning how to
accurately model the building’s structural and architectural components.
accurately model the building’s structural and architectural components.