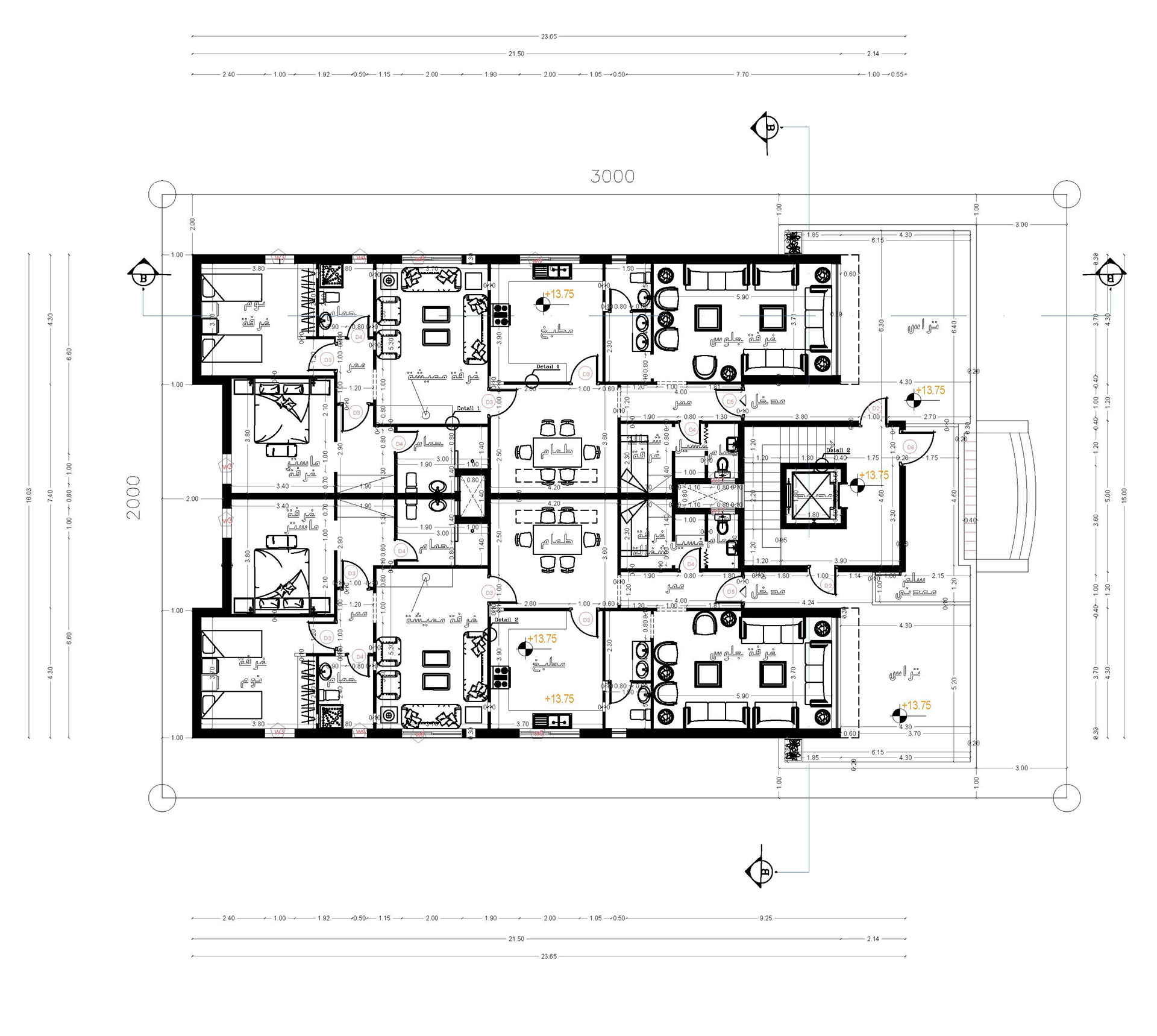
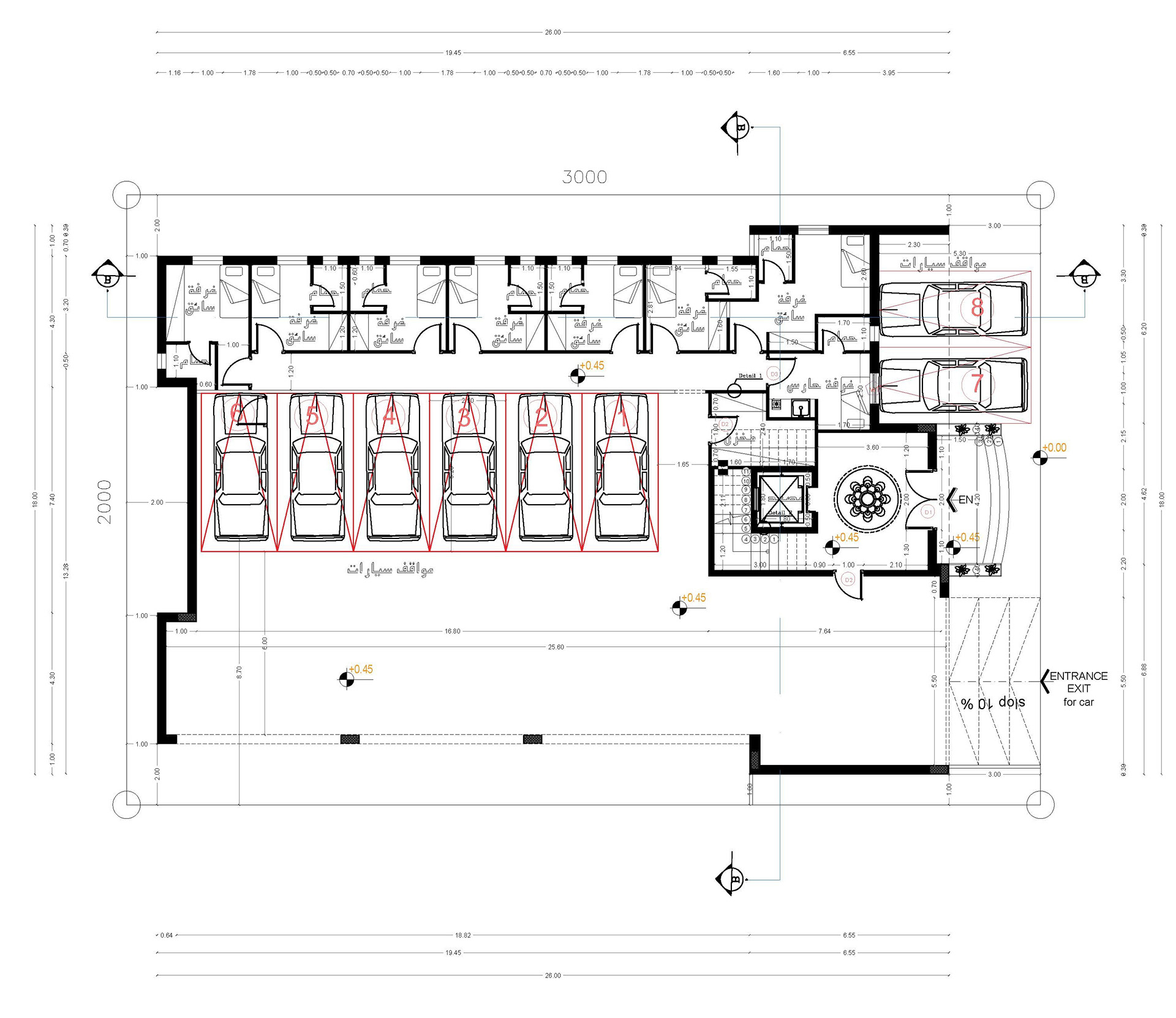
This project is a four-story residential building designed in Makkah, Saudi Arabia, with an additional rooftop level. The ground floor accommodates all essential building services, including parking and utility areas, to support the residents’ daily needs. The project was completed as a freelance commission for a private client, allowing for a flexible and personalized design approach. Construction of the building was successfully completed in 2021, resulting in a functional and comfortable living environment that responds to the local context and the client’s requirements.
Back to Top