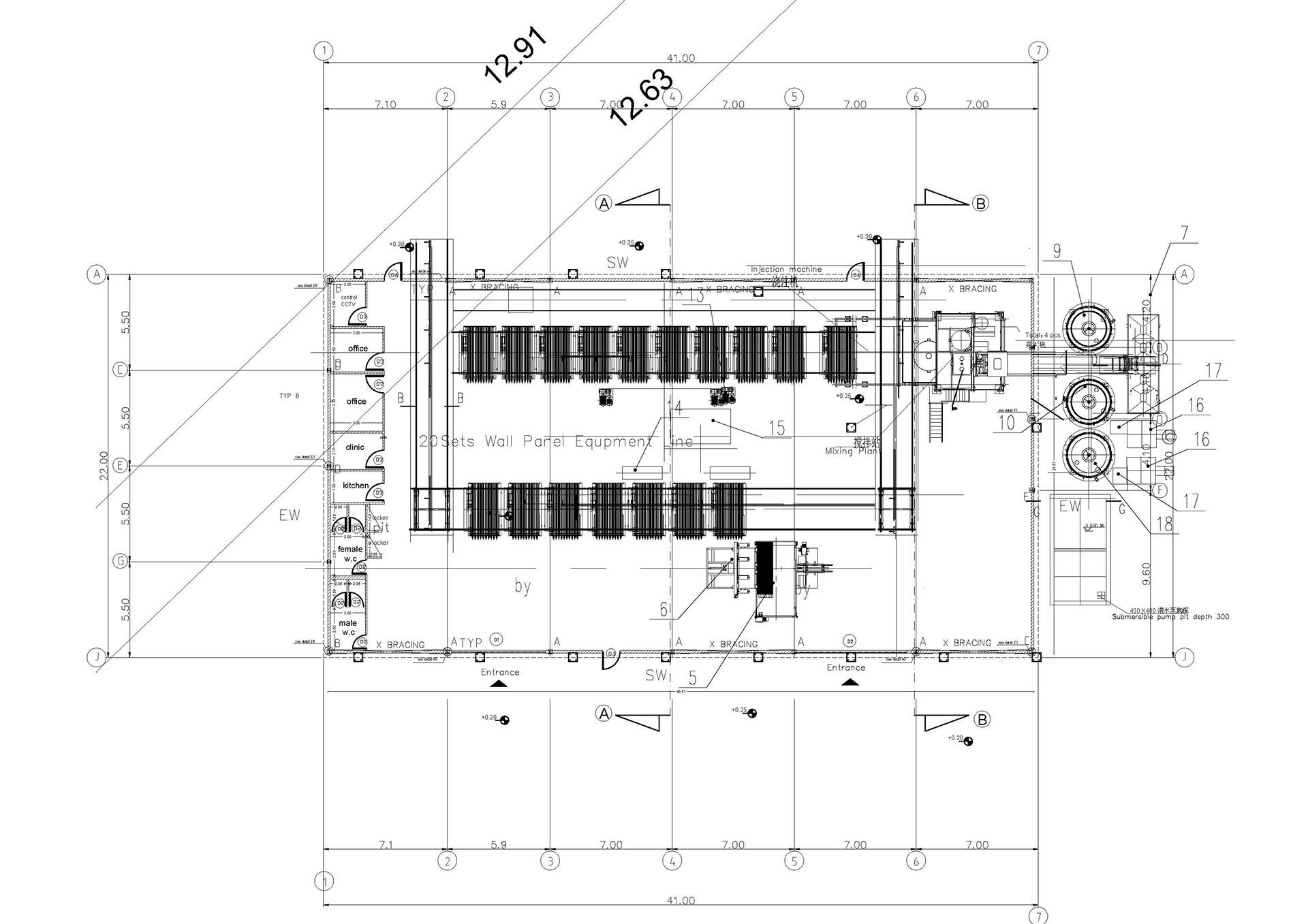
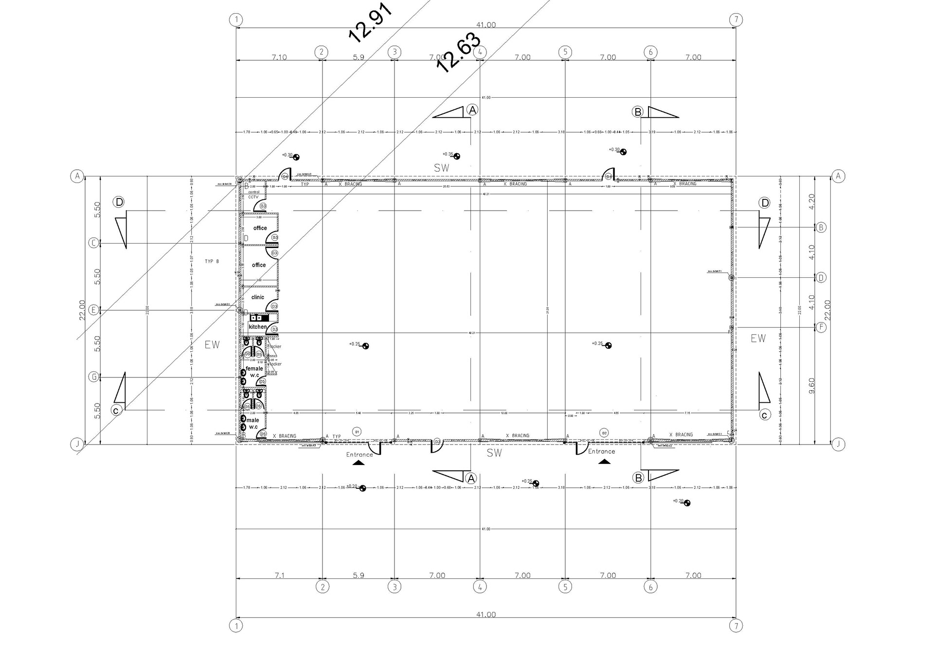
This project is the design of Al-Juda’a Factory in Amrit, Jordan, developed to manufacture precast concrete walls. The design process focused on optimizing the workflow, ensuring that the layout of the production areas, storage, and circulation supported an efficient manufacturing process. Careful attention was given to the distribution of spaces according to the sequence of production activities, minimizing unnecessary movement and enhancing productivity. The facility integrates functional planning with practical architectural solutions, providing a well-organized and safe working environment while supporting the technical requirements of precast wall production.
Back to Top