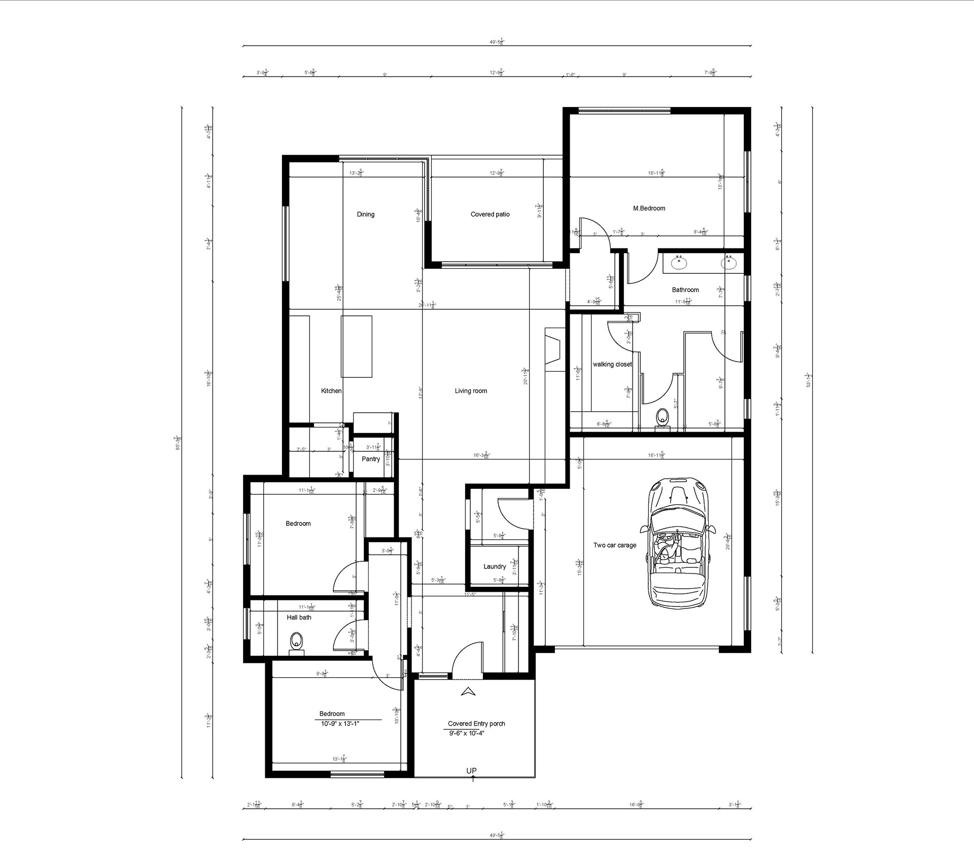
A single-story residential cabin designed using AutoCAD. The main objective was to apply AutoCAD commands in a professional and precise manner to develop a complete architectural drawing set. The design emphasizes clarity in linework, layering, and technical detailing while maintaining a clean architectural composition. The cabin embraces the natural surroundings, using wood as the primary material to create a warm, contemporary retreat that harmonizes with the landscape.


Back to Top