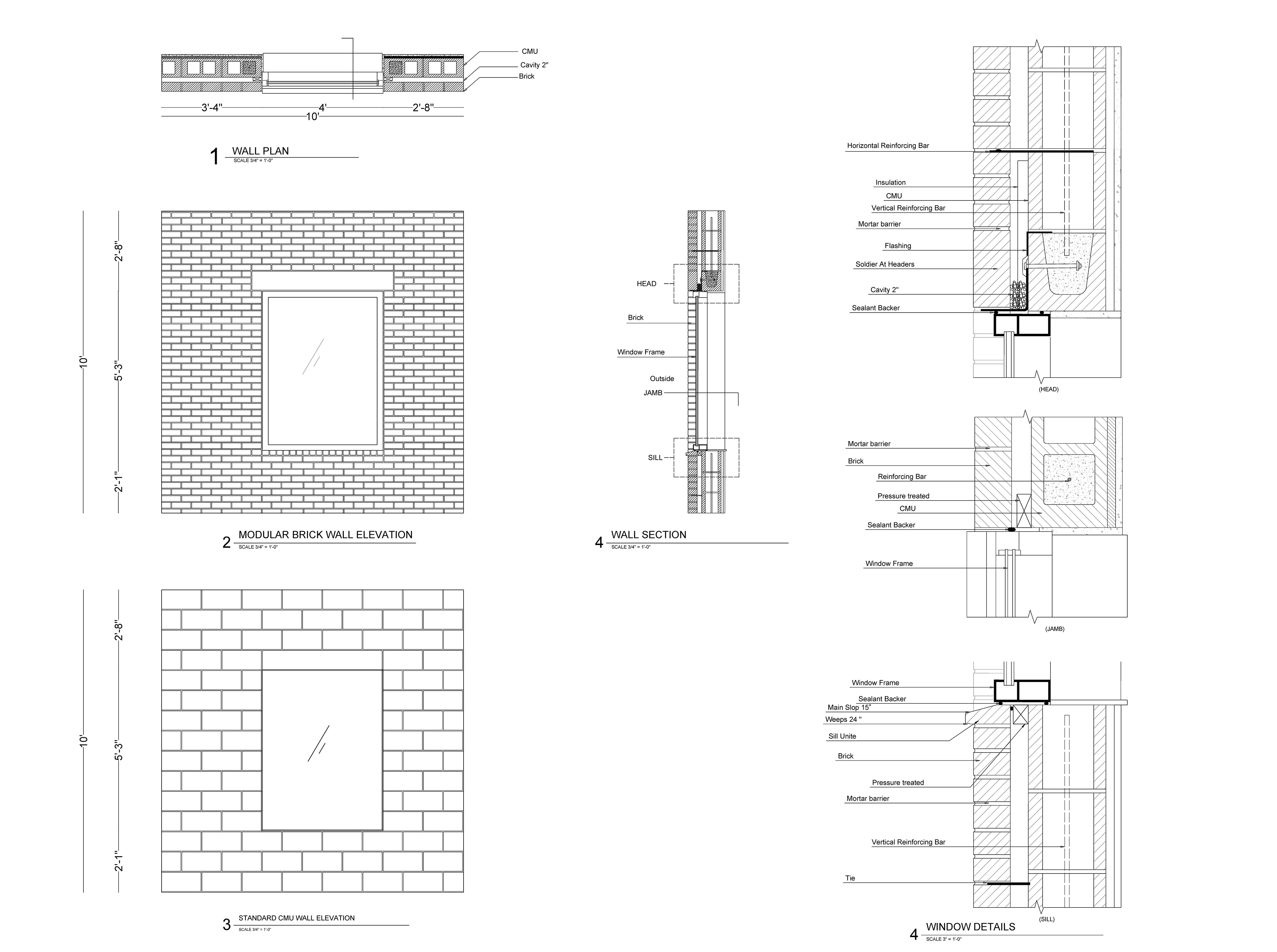
The enclosure system was studied in depth, with a focus on its thermal insulation performance, water resistance, and structural support. A detailed sectional drawing of the exterior wall was developed to illustrate the complete assembly, including all material layers,
connections, and transitions. This section clearly communicates the functional layering of the envelope from the structural components to the exterior finishes. The project was completed in alignment with California Building Codes, with strong emphasis on materials, façade systems, enclosure strategies, and construction documentation. The scope of work included drafting detailed specifications, analyzing multiple façade assemblies, and producing precise 2D and 3D representations of key construction elements.
connections, and transitions. This section clearly communicates the functional layering of the envelope from the structural components to the exterior finishes. The project was completed in alignment with California Building Codes, with strong emphasis on materials, façade systems, enclosure strategies, and construction documentation. The scope of work included drafting detailed specifications, analyzing multiple façade assemblies, and producing precise 2D and 3D representations of key construction elements.
The technical detailing focused specifically on a precast concrete wall system supported by a steel structural frame, including thermal and waterproofing layers, connection methods, and performance considerations.
We developed brick wall details as a study to explore how the material can be applied effectively to the building’s exterior envelope.