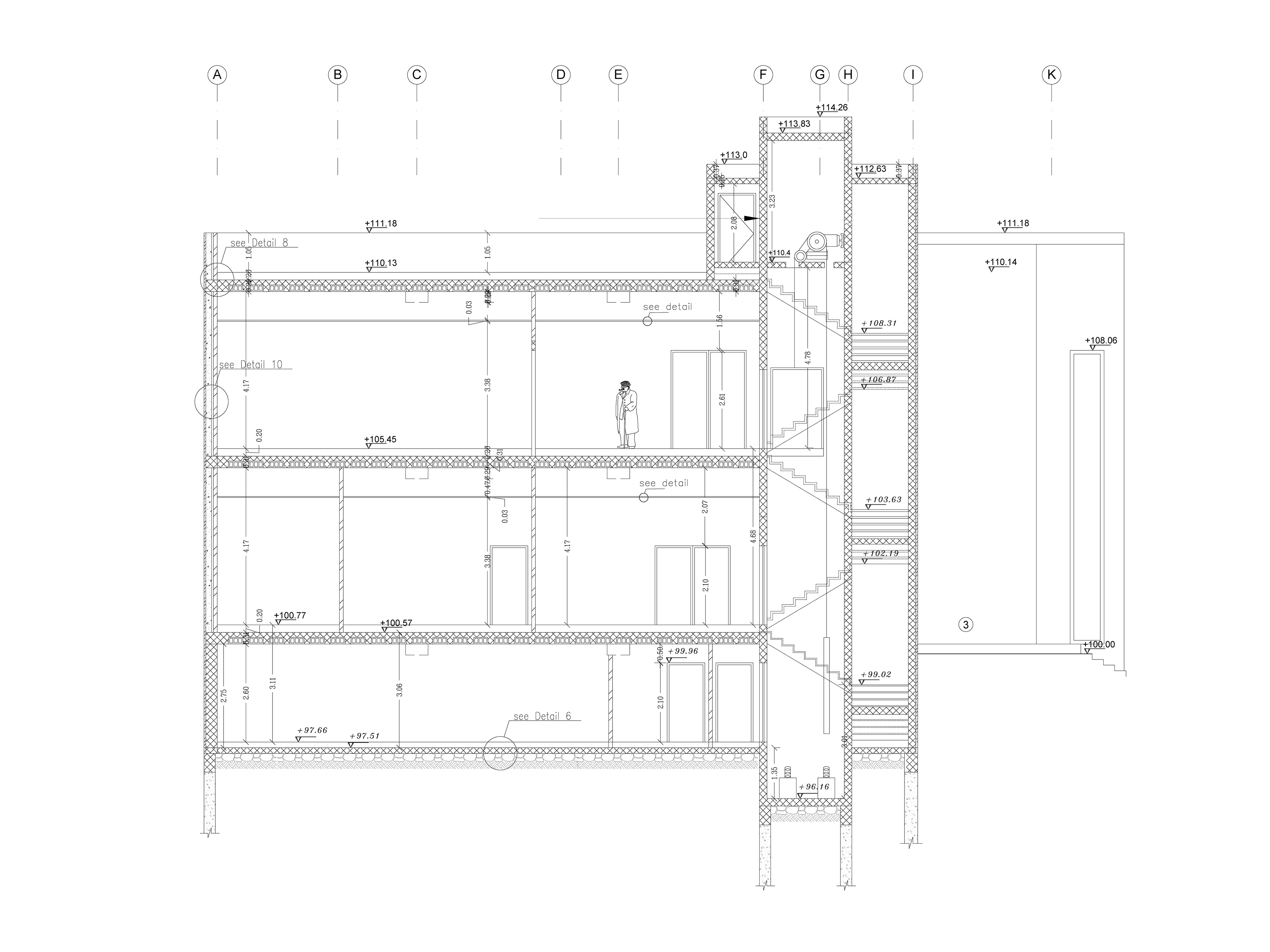
The Hallasa Family Association Building is a three-story private facility designed to serve as a social and administrative hub for the Hallasa family. The program includes office spaces, a multipurpose hall, and supporting service areas, all organized to promote functionality and community interaction. The total built-up area is 1,070 square meters, distributed across the three levels to balance public gathering spaces with private administrative functions. 
Back to Top