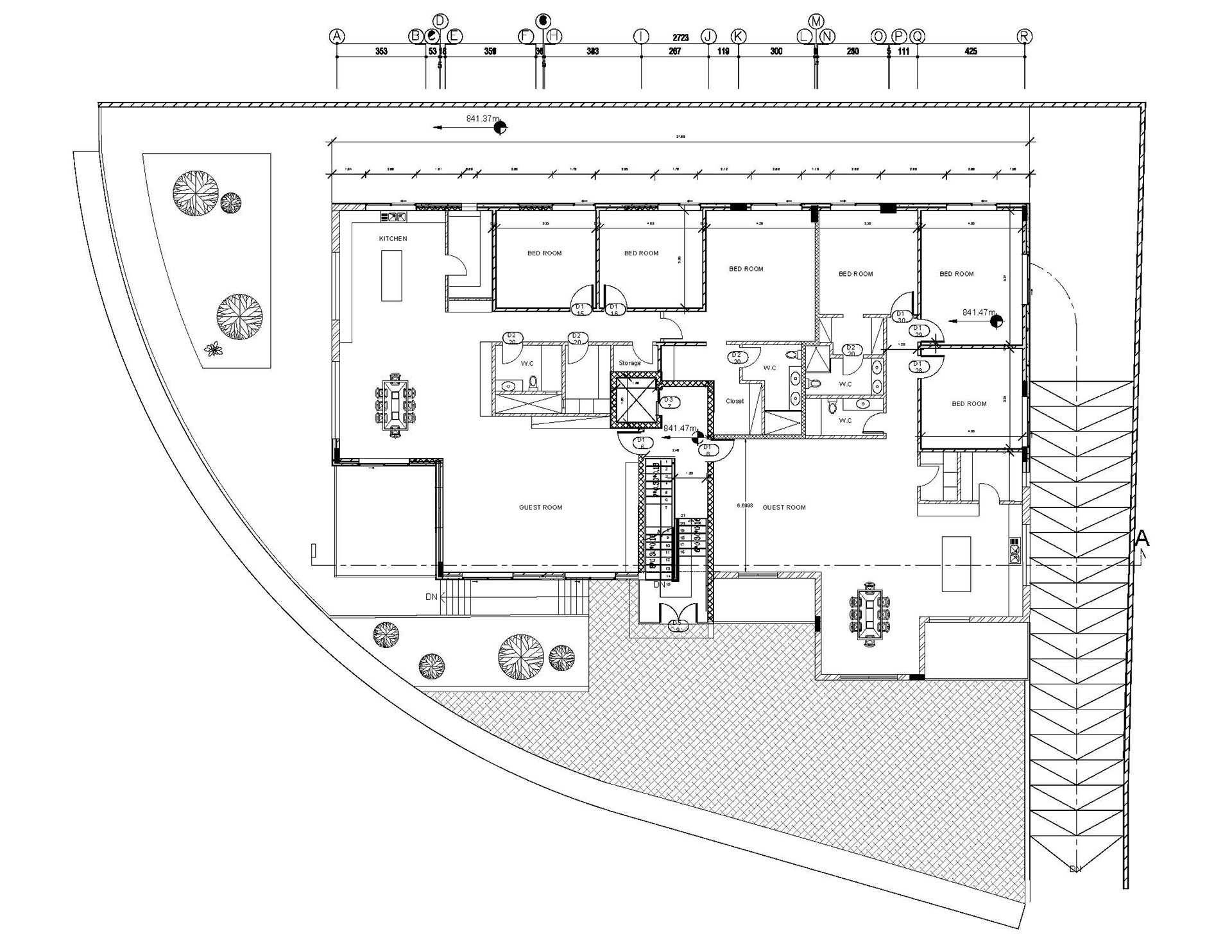
A modern multi-family residential project designed in Naour, Jordan, in 2022. The building is set on a sloped site with a 5-meter level difference, allowing for the integration of a basement level used for parking and services with direct vehicular access from the right side of the building.
Each floor has an area of approximately 500 sqm, featuring efficiently planned residential units with optimized natural light and ventilation. The design follows a contemporary architectural language with clean lines and balanced proportions.
The main design concept is based on a centralized service core, with vertical circulation and services located at the center, allowing residential units to be distributed around it for improved efficiency, privacy, and access to views.
Back to Top