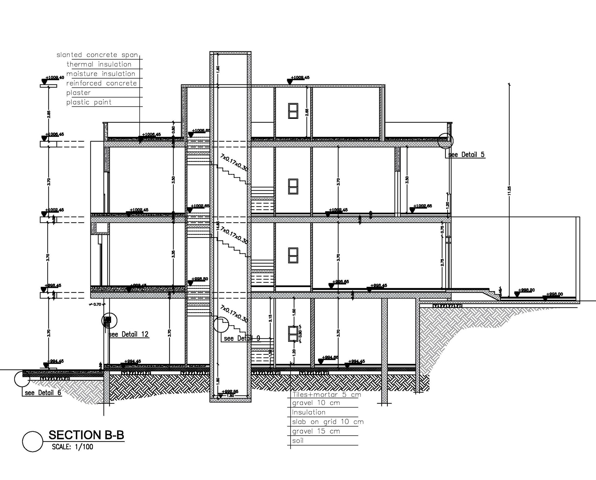
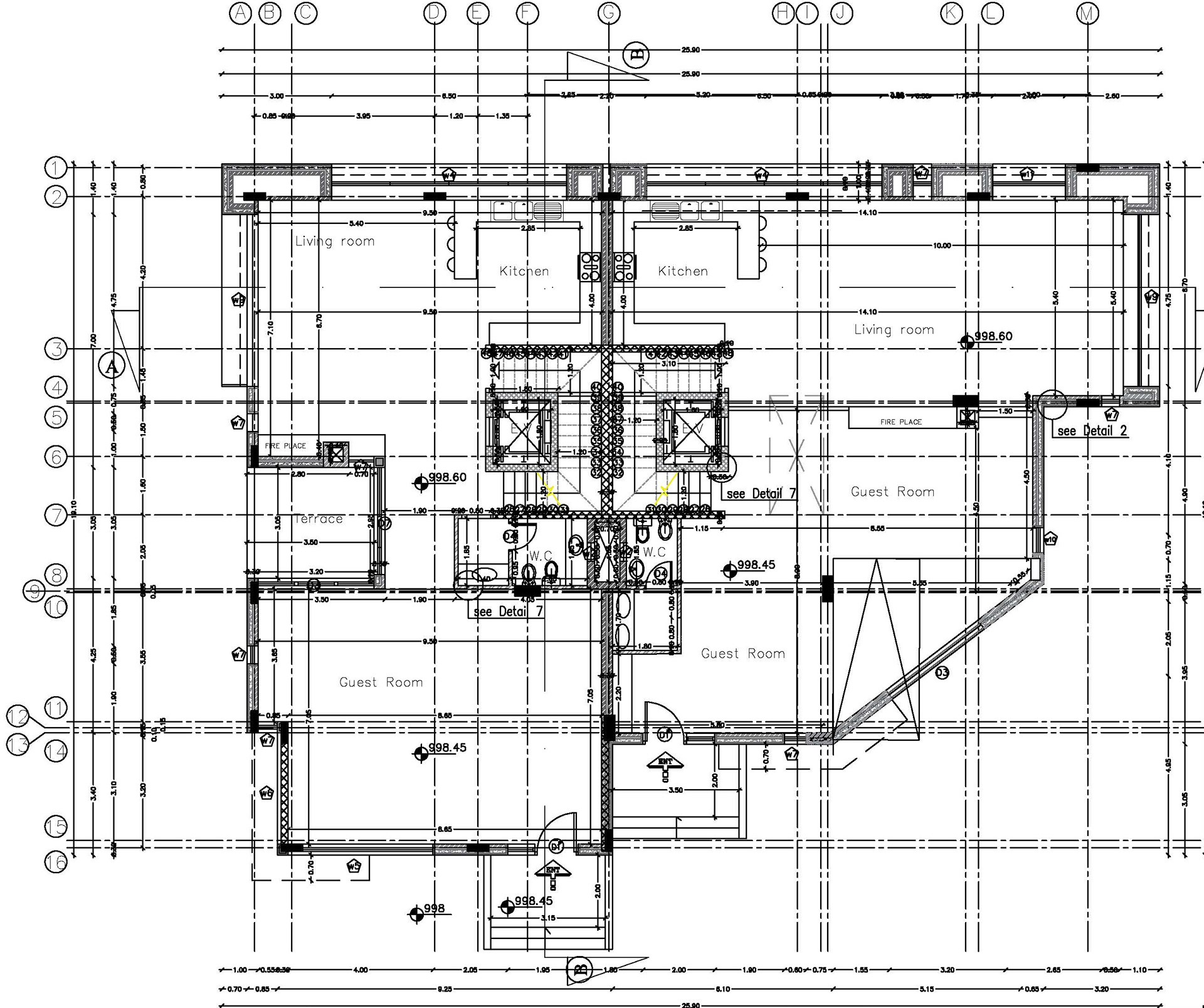
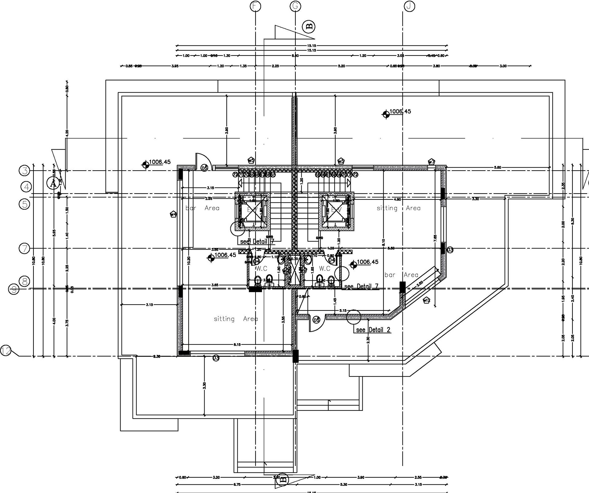
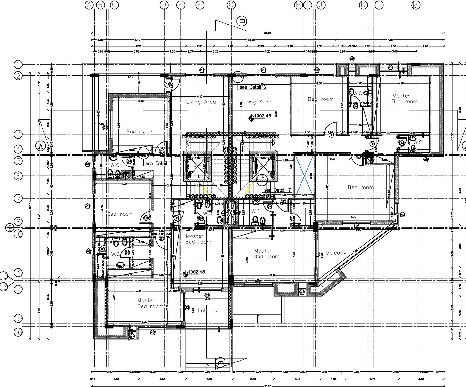
A modern townhouse residential project designed in Jordan while working at Vanzuela Office. The project consists of two attached villas, sharing a common wall, and developed over three main floors in addition to a roof level.
The design adopts a contemporary architectural approach, with a focus on proportion, material contrast, and well-defined openings. The ground floor is designed as an open-plan layout, integrating the main living, dining, and kitchen spaces, while the upper floors are dedicated to bedrooms to ensure privacy and a clear separation of functions.
The façades incorporate a combination of stucco and natural stone, complemented by wooden louvers on the windows, enhancing shading, privacy, and the overall architectural expression. The roof level is designed as an additional usable space, improving the overall living experience.
Back to Top