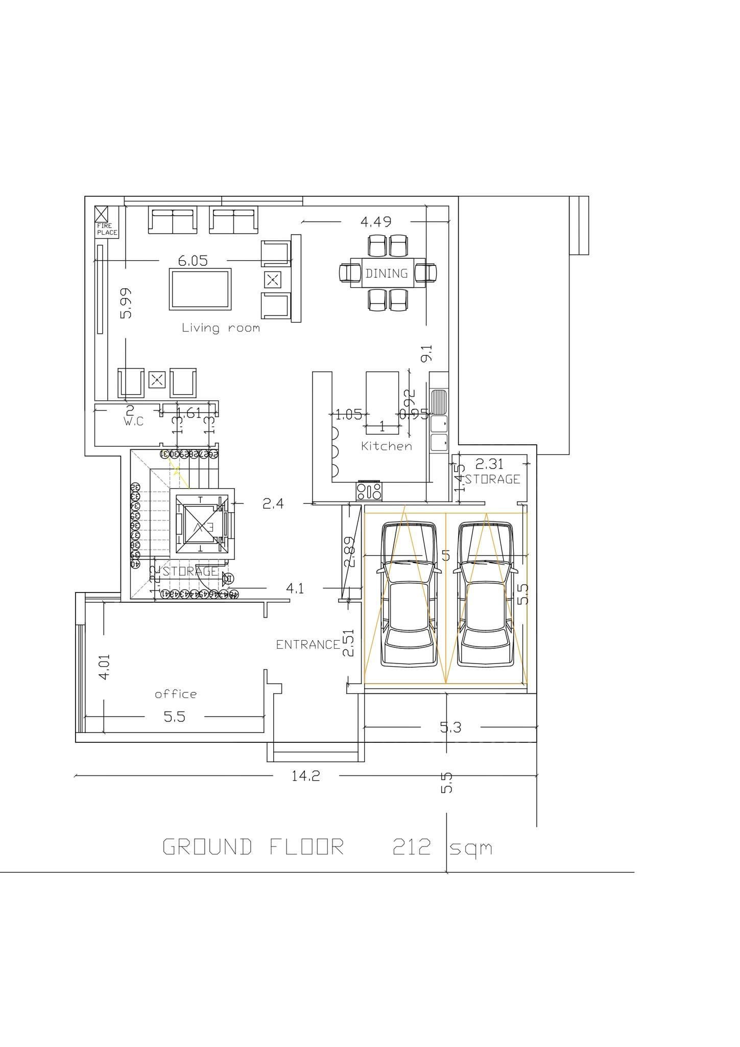
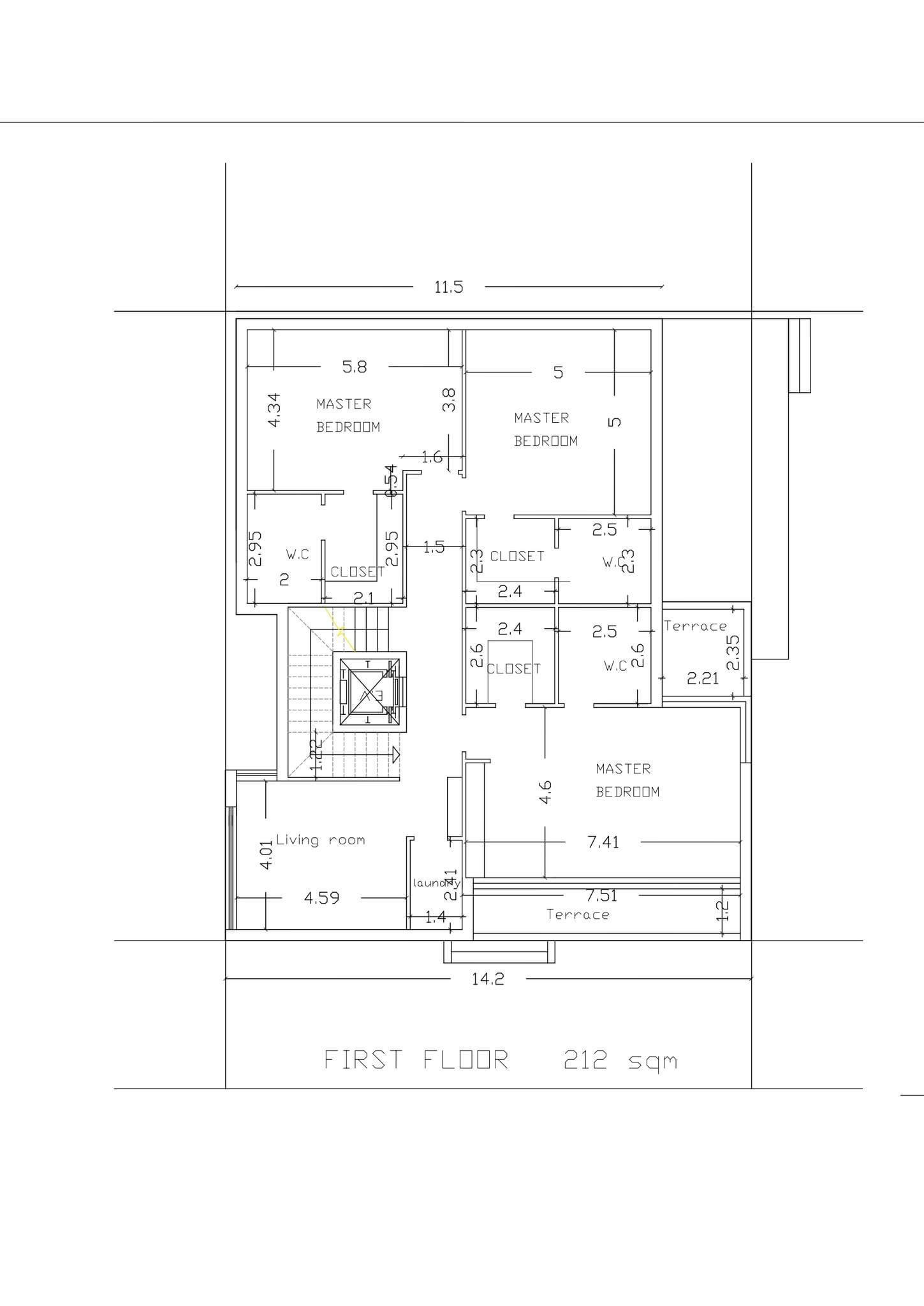
This project is a modern two-story villa designed in Jordan in collaboration with a design office in Venezuela. The villa features a clean contemporary style, open interior layouts, and large glazed openings that connect the indoor spaces with the surrounding landscape. The design integrates modern materials, efficient spatial organization, and a balanced façade composition to create a comfortable and elegant family home. Collaboration with the Venezuelan team introduced an international design perspective that enriched the project’s architectural character. The villa was successfully constructed in 2025, bringing the design vision into reality.
Back to Top